RADIZEL
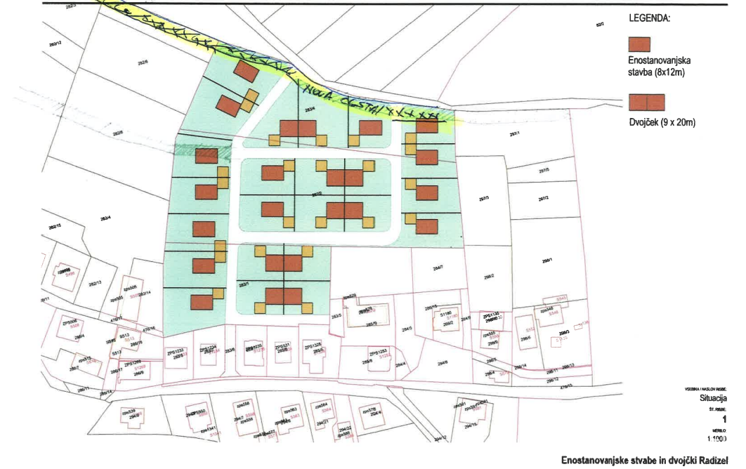
Investicijska priložnost nakupa gradbenega zemljišča v izmeri 18.425 m2, sestavljena iz treh zemljišč, delno na ravnini, delno pod naklonom.
Povezava na video predstavitev https://youtu.be/XgPaGlueu7o
Gradbene parcele so primerne za gradnjo stanovanjskega naselja, enostanovanjskih hiš in dvojčkov, za katere se sprejema OPPN.
INFORMACIJE O ZEMLJIŠČIH
ZNAČILNOSTI ZEMLJIŠČ:
LOKACIJA:
Oddaljenost od Maribora in Slovenske Bistrice, cca 13 km, oddaljenost od Hoč, 5.8 km, od AC priključka 1.8 km. Izjemno sončna lega z naklonom in neoviranim pogledom v dolino, z bližino infrastrukture je odlična destinacija za družine, ki želijo na eni strani življenje v naravi, na drugi pa hitro dostopati do vseh pomembnih točk.
KONTAKT:
Maja Sep Željko
T: 070 424 899
| Restavracija: | 800m |
| Pekarna: | 1300m |
| Avtobusna postaja: | 700m |
| Frizerski salon: | 1000m |
| Park/igrišče: | 2300m |
| Pošta: | 1700m |
| Šola: | 2100m |
| Lekarna: | 2100m |
| Železniška postaja: | 2500m |
| Bencinska črpalka: | 4.1km |
